VIVIENDA UNIFAMILIAR EN PUÇOL

Cliente: Privado
Servicio: Proyecto, Dirección Obra y Project Management
Fecha de proyecto: Abril-2007
Status: Finalizada
Situación: C/ Profesor Tomás y Valiente, 19 , Puçol
Provincia: Valencia
Tipo de edificación: Vivienda unifamiliar entre medianeras

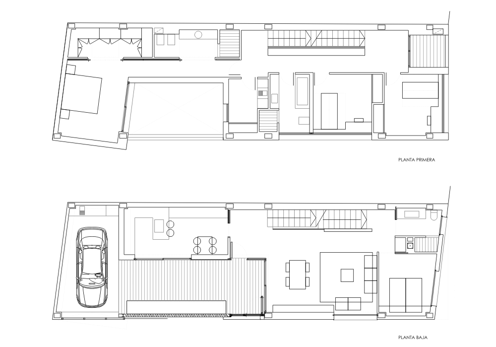
Volumétricamente la vivienda se resuelve con la superposición de 2 cubos de distinto tamaño sobre una base pétrea.
El cubo de dimensiones más reducidas lo ocupa el dormitorio principal, mientras que el resto de dormitorios y la sala polivalente se sitúan en el cubo más grande.
En planta baja, el acceso, la cocina y salón comedor, se articulan alrededor del patio que se entiende como el verdadero centro de la casa y por el contrario, en las plantas superiores, se aprovecha la mayor altura para abrir las vistas al paisaje.
Funcionalidad en la distribución de los usos, conjuntamente con el estudio de la luz y las vistas, han determinado el resto.