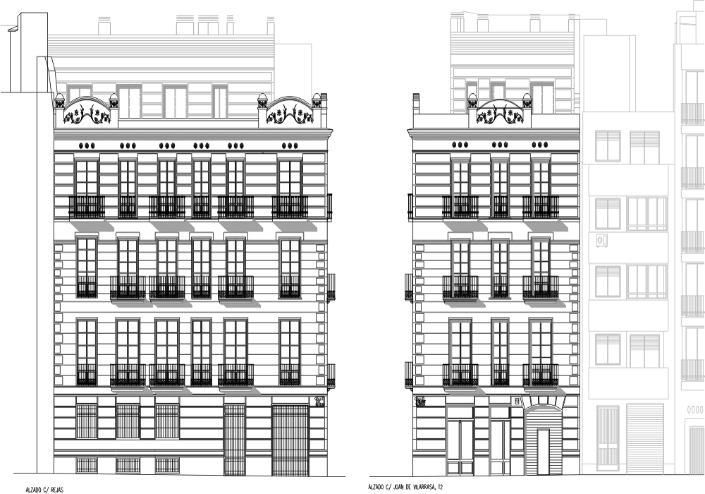
REHABILITACIÓN DE EDIFICIO DE 14 VIVIENDAS, OFICINAS Y GARAJE EN CALLE VILARRASA,12 ESQUINA CON CALLE REIXES DE VALENCIA

Cliente: Privado
Servicio: Dirección de Obra (compartida)
Fecha de proyecto: Junio-2005
Status: Finalizado
Situación: C/ Vilarrasa esquina con C/ Reixes de Valencia
Provincia: Valencia
Tipo de edificación: Residencial plurifamiliar, oficinas y garaje

El edificio se incluye dentro del conjunto histórico de Valencia en el área del PEPRI Barri Velluters, incluido en el Ámbito VIC del Conjunto Histórico y en el ámbito de protección arqueológica, desarrollo del PGOU de Valencia. El edificio tiene Nivel de Protección 3, que permite las obras de rehabilitación manteniendo las fachadas y núcleos de escalera.
Debido al alto grado de deterioro que presenta la estructura existente se procede a la demolición de la misma, sustituyéndola por una nueva estructura formada por pilares y vigas metálicas sobre los que descansan forjados unidireccionales constituidos por semiviguetas pretensadas y aligeramientos de bovedillas de porexpan, previa la estabilización de la fachada que se mantiene pues así lo exige el nivel de protección del edificio. La nueva cimentación se ejecuta con micropilotes sobre encepados arriostrados en dos direcciones mediante vigas de hormigón.
La actuación a realizar comprende la rehabilitación integral del edificio.