REHABILITACIÓN DE EDIFICIO DE 24 VIVIENDAS, OFICINAS Y LOCALES COMERCIALES EN CALLES LINTERNA, MÚSICO PEYDRÓ Y ABATE

Cliente: Privado
Servicio: Dirección de Obra (compartida)
Fecha de proyecto: Noviembre-2005
Status: Finalizado
Situación: C/ Linterna 13, C/ Músico Peydró 13 y C/ Abate 3 de Valencia
Provincia: Valencia
Tipo de edificación: Residencial plurifamiliar, oficinas y bajos comerciales

El edificio se incluye dentro del conjunto histórico de Valencia en el área del PEPRI Barri del Mercat desarrollo del PGOU de Valencia y señalado dentro del Nivel 2 o protección estructural.
En la actuación se distinguen zonas con distintas características constructivas. En alguna de ellas se mantiene la estructura existente reforzada para asegurar la estabilidad, pero en otras, debido a su mal estado original, se plantea su demolición y su sustitución por una estructura de pórticos planos de vigas y pilares metálicos con forjados unidireccionales de semiviguetas de hormigón. En ambos casos la catalogación patrimonial de la fachada obliga a su mantenimiento.
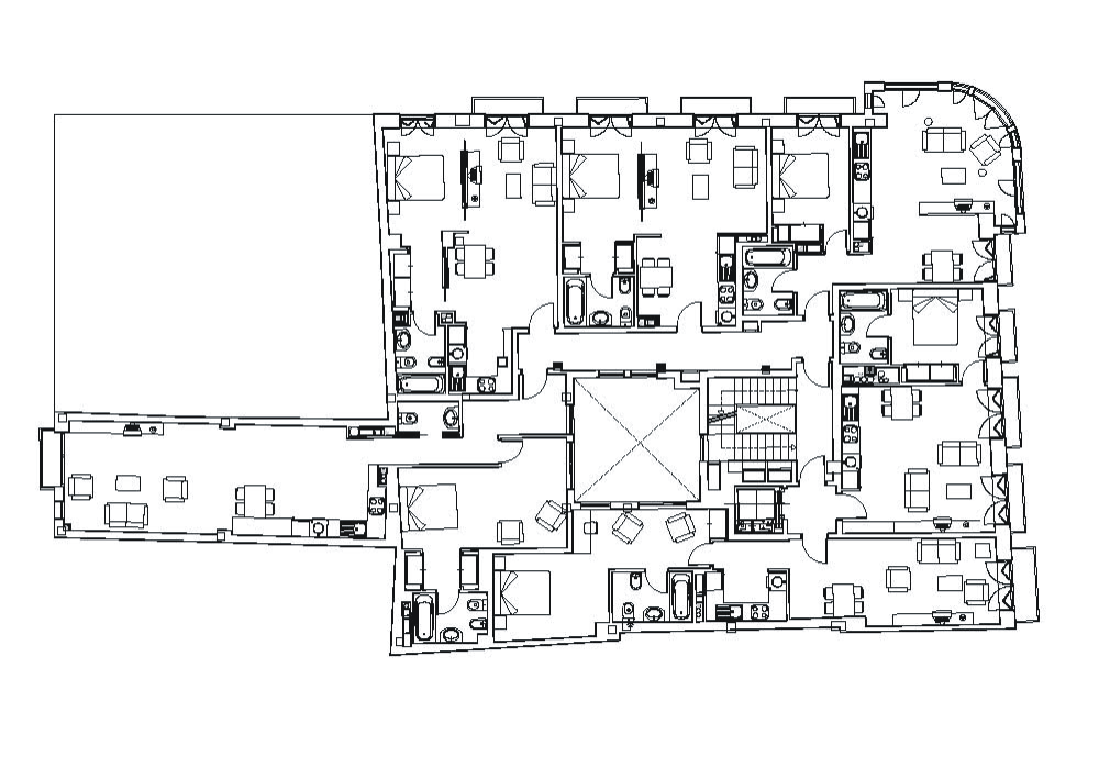
El proyecto redistribuye el espacio interior en 24 viviendas, oficinas y bajos comerciales, así como trasteros en el sótano.
La actuación a realizar comprende la rehabilitación integral del edificio.