HABILITACIÓN DE ALMACÉN EN ESTUDIO DE ARQUITECTURA EN PUÇOL
Cliente: Privado
Servicio: Proyecto, Dirección Obra y Project Management
Fecha de proyecto: Diciembre-2004
Status: Finalizado
Situación: C/ Mestre Martí nº30, bajo izqda, Puçol
Provincia: Valencia
Tipo de edificación: Comercial
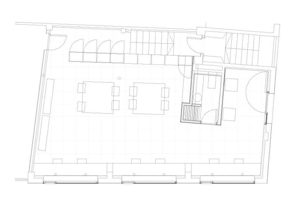
De las cinco crujías de que disponía el almacén existente, 3 son habilitadas como estudio y las otras dos se mantienen como garaje.
La preexistencia de la bóveda de una escalera que sube a la planta superior, resulta determinante para ubicar bajo ella el aseo, que va a ser el único ámbito cerrado del estudio. Nos vamos a servir también de este volumen para separar la zona de acceso de la zona de trabajo.
El resto del estudio es todo un ámbito diáfano donde es el mobiliario el que determina la distribución de usos.
Aspectos a destacar:
- Se aprovecha la orientación Norte de la fachada para abrir en ella grandes ventanales.
- Se potencia la altura del local existente, sin reducirla más que en lo estrictamente necesario por los pasos de instalaciones.
- Se pone en valor la estructura preexistente: pilares de hormigón y de acero.
- Se cuida la elección de los materiales: piedra Sant Vicent, madera de mobila vieja, carpintería de acero, etc
- Se miman los detalles constructivos.